Автокран КС 3577 – устройство и технические характеристики
Автокран КС 3577 – специальная техника легкого класса, предназначенная для работ по погрузке, выгрузке, а также строительных работ, в разных отраслях народного хозяйства.
Кран смонтирован на двухосном шасси автомобиля МАЗ-5334.
Автокран КС 3577 быстро приводится в рабочее положение и не требует большого пространства для подъезда и работы. Технические характеристики машины позволяют перемещать любые тяжести: железобетонные изделия, металлопродукцию, лесоматериалы и прочие.
Применение трапецеидального опорного контура позволило повысить как максимальную грузоподъемность крана, так и грузоподъемность в рабочем диапазоне вылетов по сравнению с той же характеристикой крана КС-3571.
Устройство автокрана КС 3577
Привод насоса 15 осуществляется от двигателя 16 автомобиля через коробку отбора мощности 14, установленную на коробке передач 13. Насос включают (отключают) рычагом, расположенным в кабине водителя и соединенным тягой с коробкой отбора мощности.
Телескопическая стрела состоит из неподвижной 5 и подвижной 1 секций. Выдвижение последней на длину 6 м осуществляется гидроцилиндрами 2 и 3, штоки которых соединены муфтой.
Для увеличения подстрелового пространства и высоты подъема крюковой подвески предусмотрен решетчатый гусек, выполненный из углового проката. Гусек можно перевозить на кране, для чего его поворачивают на 180° из рабочего положения и фиксируют рядом со стрелой.
Для удлинения гуська используется решетчатая вставка, выполнения из углового проката. Она имеет кронштейны для подсоединения к головной части подвижной секции стрелы и к гуську.
Механизм подъема стрелы предназначен для ее перемещения в вертикальной плоскости. Он представляет собой гидроцилиндр 4 двустороннего действия. Фиксация его штока в заданном положении осуществляется гидрозамком.
Грузовая лебедка включает в себя гидромотор 12, цилиндрический двухступенчатый редуктор 9, барабан 10 и нормально замкнутый ленточный тормоз 11 с гидроразмыкателем.
Механизм поворота состоит из гидромотора 6, двухступенчатого редуктора 8, нормально замкнутого колодочного тормоза 7 с гидроразмыкателем. На выходном валу редуктора установлена шестерня, входящая в зацепление с зубчатым венцом опорно-поворотного круга. Для вращения поворотной части крана вручную (с помощью рукоятки) промежуточный вал-шестерня имеет на конце квадратный хвостовик 5.
Поворотная платформа соединена с рамой однорядным роликовым опорно-поворотным кругом с внутренним зацеплением.
Кабина машиниста, установленная на поворотной платформе крана, облицована декоративным пластиком, теплоизолирована, имеет два открывающихся наружу окна. Она оборудована стеклоочистителем, вентилятором, плафоном для освещения, противосолнечным козырьком, ящиком для аптечки, карманом для документации. Кабина обогревается отопителем О30.
Гидропривод выполнен по разомкнутой схеме циркуляции рабочей жидкости и с комбинированным регулированием скорости путем дросселирования рабочей жидкости, изменения частоты вращения вала насоса и рабочего объема регулируемого гидромотора грузовой лебедки.
В гидроприводе использованы аксиально-поршневые насос и гидромоторы, секционные гидрораспределители и другие унифицированные гидроэлементы.
Электрооборудование автомобиля и крановой установки рассчитано на напряжение 24 В и состоит из приборов безопасности, освещения и сигнализации, а также контрольно-измерительных приборов.
Кран оснащен устройствами и приборами, обеспечивающими его безопасную эксплуатацию: ограничителем грузоподъемности, состоящим из релейного блока, панели сигнализации и датчиков усилий, вылета и длины стрелы; ограничителями высоты подъема и усилия затяжки крюковой подвески; указателями грузоподъемности и наклона крана; сигнализатором зоны работы, устройством оповещения о приближении к ЛЭП.
Технические характеристики автокрана КС 3577
| Базовое шасси: | МАЗ-5334 | 
| Грузоподъемность, т: | 14 | 
| Длина стрелы, м: | 14 | 
| Мощность двигателя, л.с. | 230 | 
| Частота вращения поворотной части, об/мин | 1 | 
| Транспорная скорость, км/час | 86 | 
| Выдвижение опор | механически | 
| Двигатель | ЯМЗ-236НЕ2 | 
| Колесная формула | 4х2 | 
| Скорость посадки груза, м/мин | 0,4 | 
| Скорость подъема (опускания) груза, м/мин | 10,0 | 
| Грузовой момент, тм | 40 | 
| Длина удлинителя, м | 7 | 
| Масса в транспортном положении, т | 15,5 | 
| Распределение нагрузки на дорогу, задние колеса, т.с. | 9,4 | 
| Распределение нагрузки на дорогу, передние колеса, т.с. | 6,1 | 
| Длина, мм | 9850 | 
| Размер опорного контура вдоль и поперек оси шасси, м | 4,15 х 5,08 | 
| Ширина, мм | 2500 | 
| Высота, мм | 3650 | 
Разработки и создание
Автокран Ивановец получил название в честь своего производителя — Ивановского завода автомобильных кранов. Основным направлением предприятия во времена Советского Союза была разработка и комплектация стреловых кранов на автомобильном шасси, которые могли работать на любых участках. История Ивановского завода началась ещё в середине 50-х годов прошлого века, а сам «Ивановец» появился на свет только в 1984 году. Первой моделью завода стал агрегат КС 3577 на базе легендарного грузовика МАЗ 5334, ставшего основой для дальнейшего развития этой серии.
Вскоре гидравлический кран приобрёл популярность на всей территории СССР, а количество производимых агрегатов с каждым годом только увеличивалось. Высокий спрос на автокран Ивановец был обусловлен качественной комплектацией, хорошими техническими характеристиками и показателями мощности. Тот факт, что в 80-е годы существовал автокран с грузоподъёмностью в двенадцать с половиной тонн, уже свидетельствует о профессионализме инженеров.
На сегодняшний день Ивановский завод является крупнейшим в Российской Федерации и странах СНГ производителем автомобильных кранов и ежегодно поставляет сотни новых моделей. Стоит отметить, что предприятие постоянно получает государственные заказы военного назначения и производит автокраны с огромными показателями грузоподъёмности для Министерства Обороны. Что касается разработок новых автокранов с индексом КС, то после распада СССР производство было перенесено на предприятие «Угличмаш».
Устройство оборудования
Автокран КС-3577 — специализированная погрузочная техника, принадлежащая легкому классу. Она смонтирована на белорусском грузовике. Машина способна перемещать различные тяжести, крупногабаритные объекты.
Для крана разработан опорный контур особого трапецеидального сечения, благодаря чему удалось повысить его грузоподъемность.
Стрела
На грузовысотные характеристики установки влияют параметры телескопической стрелы. Она имеет неподвижный, а также подвижный элемент. Последний выдвигается на удаление 6 м, выталкиваемый гидроцилиндрами.

 Схема гидроцилиндра выдвижения стрелы
Чтобы увеличить пространство под стрелой, обеспечивая большую высоту для крюковой подвески, присутствует решетчатый гусек. При перемещении машины его поворачивают, а затем фиксируют около стрелы. Чтобы удлинить приспособление, необходима решетчатая вставка с кронштейнами, посредством которых происходит монтаж к подвижной конструкции.
Подъем стрелы
Гидравлический механизм, управляющий подъемом стрелы, служит для перемещения этой конструкции по вертикали. Это гидроцилиндр опоры, действующий в двух направлениях. Фиксацию штока обеспечивает гидрозамок.

 График высоты подъема стрелы КС-3577
Поворотная установка
Устройство для поворота крана включает следующие узлы:
- Поворотный редуктор.
- Гидромотор.
- Колодочный тормоз, оснащенный гидрозамыкателем.

 Устройство поворотного механизма автокрана КС-3577
Дополнительно присутствует система, которая обеспечивает вращение конструкции вручную рукояткой, смонтированной на опоре в виде круга с роликами.
Кабина
Место для водителя в автокране Ивановец этой модели установлено на вращающейся платформе. Кабина облицована теплоизоляционным декоративным материалом, который обеспечивает комфортность при работе машиниста. В помещении сделаны два окна, открываемые наружу.

Также присутствуют дополнительные приспособления:
- вентилятор;
- стеклоочистители;
- отопительный прибор;
- плафон освещения;
- место для документов и аптечки;
- солнцезащитный козырек.
Безопасность
КС-3577 оборудовано приборами безопасности:
- Датчики усилий.
- Фиксаторы грузоподъемности.
- Контроль вылета стрелы.
- Концевые ограничители подъема.

 Расположение систем безопасности КС-3577
Гидропривод
Система гидравлики выполнена по особой разомкнутой схеме, обеспечивающей циркуляцию масла. Регулирование скорости его перемещения происходит комбинированным способом. Для этого выполняется дросселирование жидкости, контролируемое изменение оборотов вращения насоса, что позволяет регулировать рабочий объем масла в гидромоторе лебедки.
Цепь гидропривода включает поршневые насосы, функциональные гидрораспределители, иные унифицированные запчасти.
Электрическая начинка
Автомобильная установка КС-3577 обеспечена базовым комплектом современного электрооборудования. В него входят измерительные датчики, система безопасности, оборудование для освещения.
Система электроники получает питание от генератора.
Автокран КС-3577 — технические характеристики

Маневренная спецтехника небольшой грузоподъемности нужна на стройплощадках всегда. Образцом удобного оборудования стал автокран КС-3577, о технических характеристиках которого стоит поведать подробнее.
Машина служит для погрузки/разгрузки разного материала. Ее активно применяют строители, производственники различных сфер промышленности. Продуманное устройство техники обеспечило ей популярность. Транспорт удобно использовать при перемещении лесоматериалов, бетонных и металлических конструкций.
Назначение крана
Это самоходная машина, основное ее предназначение — изменение локализации различных грузов путем перемещения их на небольшое расстояние. Преобладают в автокране лишь проверенные практическим опытом технические решения, что делает технику адаптированной для выполнения всевозможных задач.
Варианты использования КС 3577 далеко не ограничены процессом погрузки/выгрузки. Многоцелевая машина на основе МАЗ-5334 сумела доказать превосходство над большинством конкурентов, быстро выполняя монтаж зданий, перемещая крупногабаритные технические приспособления. Для нее отсутствуют ограничения, касающиеся размеров и веса переносимых объектов, поскольку кран имеет грузоподъемность в 16 тонн, а этого вполне достаточно для спецтехники малого класса.
Размеры автокрана КС-3577
Модель не теряется даже на фоне машин, у которых этот показатель достигает 25 тонн. Автокран справляется с работой везде, где приходится заменить манипуляторы, у которых недостаточно мощности для выполнения требуемых задач. КС 3577 успешно используют сотрудники МЧС при разборке завалов.
Устройство оборудования
Автокран КС-3577 — специализированная погрузочная техника, принадлежащая легкому классу. Она смонтирована на белорусском грузовике. Машина способна перемещать различные тяжести, крупногабаритные объекты.
Для крана разработан опорный контур особого трапецеидального сечения, благодаря чему удалось повысить его грузоподъемность.
Стрела
На грузовысотные характеристики установки влияют параметры телескопической стрелы. Она имеет неподвижный, а также подвижный элемент. Последний выдвигается на удаление 6 м, выталкиваемый гидроцилиндрами.
Описание и назначение
КС 3577 – самоходная машина легкого класса, основное предназначение которой – изменение местоположения различных грузов, и их перемещение на определенные расстояния. В этом автокране преобладают только проверенные технические решения, делающие технику не только ремонтопригодной, но и адаптированной к разнообразным задачам. Возможности применения КС 3577 не ограничиваются только погрузкой и выгрузкой объектов. Более того, многоцелевая самоходная машина КС 3577, построенная на базе автомобильного шасси МАЗ-5334, доказала свое превосходство над конкурентами при быстром и эффективном монтаже зданий, сооружений, а также перемещении громоздких технических приспособлений в вертикальном и горизонтальном положении. При этом нет каких-либо ограничений по массе и габаритам переносимых объектов, ведь техника рассчитана на максимальную грузоподъемность 16 тонн, что в полной мере соответствует малому классу. По нынешним меркам данная модель достойно выглядит и на фоне актуальных машин с показателем 25 тонн. Данный автокран зарекомендовал себя в логистических центрах – там, где требуется срочно заменить манипуляторы, испытывающие нехватку мощности. КС 3577 также рассчитан на разгрузку, разборку и растаскивание завалов в самых горячих точках при участии МЧС России.
Ульяновец
Современный автокран Ульяновец охватывает полную рабочую круговую область (360 градусов). Подобного рода устройство оснащается трехсекционной стрелой с максимальной длиной до 22 метров.
В зависимости от модификации могут монтироваться гуськи разной длины (6 или 9 метров). Оснащенность колесной базой 6х4 и V-образным двигателем на 420 лошадиных сил позволяет надежно передвигаться автомобильному крану с максимальной скоростью до 50 км/ч.
Чем еще может заинтересовать автокран Ульяновец для повышения спроса на приобретение:
- экономный расход топлива;
- компактные размеры;
- умеренная стоимость;
- доступность комплектующих;
- неприхотливость в обслуживании.

Ивановец КС-3577

Быстрые, маневренные автокраны на небольшую грузоподъемность также нужны в строительстве как и многотонники. Они оперативно могут попасть на объект, а простота конструкции позволяет приступить к работе без сложной предварительной подготовки. Примером такого кранового оборудования может служить автокран КС-3577.
Все про крановую установку КС-3577
Многофункциональный и универсальный автокран вышел с конвейера Ивановского автомобильного завода. Базовыми автомобилями, на которые было поставлено это крановое оборудование, оказались модели: МАЗ-5334 и МАЗ-5337.
Основные узлы стрелового оборудования
Автокран КС-3577 технически оснащен так, что может быть задействован в разных грузоподъемных операциях, выполняя разгрузочно-погрузочные работы или участвуя в монтаже строительных конструкций с массой не более 16 тонн.
Оборудование стрелы
Традиционно, как и большинство автомобильных кранов, модель КС-3577 снабжена телескопической конструкцией стрелы. Сам орган подъема состоит из двух частей: неподвижной, шарнирно закрепленной к опоре и подвижной секции, которая способна выдвигаться. Подъем вверх основной опорной части стрелы обеспечивает главный гидроцилиндр. За выдвижение второй секции отвечают два гидроцилиндра, соединенные между собой при помощи муфты.
Устройство и принцип работы гидроцилиндра выдвижения стрелы автокрана
Удлинитель стрелы
Гусек или удлинитель предусмотрен, чтобы увеличить пространство работы под стрелой, а также высоту последней. В автокране КС-3577 этот элемент выполнен из металлического проката (угла) и с помощью специальных кронштейнов крепится к оголовку выдвижной секции стрелы. Транспортировать гусек можно на самом КС-3577, крепя его рядом со стрелой к ее боковой плоскости.
Операторская, поворотный узел автокрана, грузоподъемный орган
КС-3577 является грузоподъемной системой, работающей за счет гидравлики. Рабочие органы приводит в действие гидронасос, который сам подключен через коробку на вал отбора мощности автомашины. Специальным рычагом в кабине крановщик может отключить насос от привода.
Механизм поворота платформы
Узел выполнен на основе гидромотора, который соединен с двухступенчатым редуктором. Также имеется тормоз колодочного типа и гидроразмыкатель. Выходная часть редуктора на валу имеет шестерню. Последняя зацепляется с поворотно-опорным кругом по средству зубчатого венца. Поворотная часть автокрана может быть вращаема вручную рукояткой. Для этого имеется промежуточный вал с шестерней с хвостовиком на конце.
Кабина крановщика
Машинист, управляющий автокраном КС-3577, во время выполнения грузоподъемных операций находится в специальной кабине. Все органы управления машиной выведены в это рабочее помещение. Кабина оснащена световым оборудованием, охлаждающим вентилятором, имеет просторные смотровые окна. Для работ в зимний период предусмотрено отопление рабочего места, сам кузов кабины теплоизолирован.
Грузоподъемный механизм
Лебедка грузовая приводится в движение гидромотором через редуктор двухступенчатого типа. Сама она имеет барабан со способом торможения через ленточный тормоз и гидроразмыкатель. Барабан сообщается с крюковой подвеской через специальный трос.
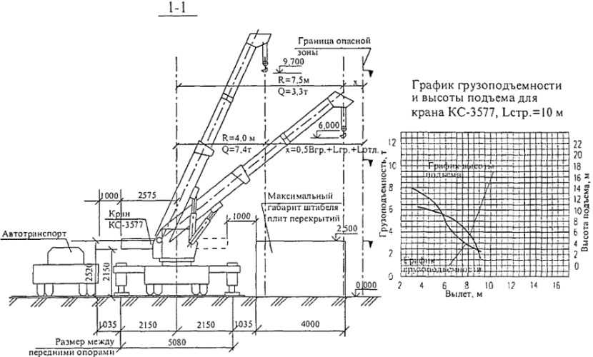
График грузоподъемности и высота
Характеристики крановой установки
КС-3577, как и любой другой кран, имеет определенные характеристики, позволяющие понимать, какие задачи может решить эта спецтехника.
Технические возможности
- Максимальная масса поднимаемого груза автокрана 16 тонн;
- Размер стрелы – 14 метров;
- Скорость при перемещении груза вверх и вниз – 10 метров в минуту;
- Мощность силового агрегата – 230 лошадей;
- Скорость во время передвижения по трассе – 85 километров в час;
- Момент грузовой – 40 т*м;
- ДШВ – 9.85х2.50х3.65 метров.
Размеры автокрана КС 3577
Грузовысотные возможности
В основном грузоподъемность автокрана КС-3577 определяется вылетом стрелового оборудования, здесь наблюдается обратно пропорциональная зависимость. Также немаловажную роль играет работа на выносных опорах и без них. Применение опор при длине стрелы около10 метров и ее вылете на 5 метров позволяет достичь грузоподъемности в 8.5 тонн. При аналогичных параметрах, но в случае работы без опор, грузоподъемность падает до 1.4 тонны.
Автокран КС 3577. Технические характеристики
История автокрана модели КС 3577 берет свое начало с 1984 года. В российском городе Иваново с цехов местного завода автомобильных кранов вышел первый гидравлический автокран на базе грузового автомобиля МАЗ 5334. Именно этот автомобиль стал основой для серии автомобильных кранов «Ивановец». Благодаря удачной конструкции, уровню функциональности и техническим характеристикам автокраны КС 3577 зарекомендовали себя как надежные машины данной категории, их популярность возрастала, а сферы применения расширялись. Его грузоподъемность составляла 12,5 тонны. На сегодняшний день производство автокранов КС 3577 именно на этом заводе прекращено, на смену легендарной уже модели пришло производство более усовершенствованных и модифицированных вариантов.
Скачать технические характеристики автокрана КС 3577.
Со временем были поставлены на конвейер еще более усовершенствованные модели КС 3577. В 1990 году на основе грузовых автомобилей МАЗ моделей 5337 и 5334 были сконструированы модификации КС 3577-3 и КС 3577-3-1. Отличительной особенностью этой третьей серии автокранов являлась увеличенная грузоподъемность, которая составляла 14 тонн.
Современный КС 3577
На сегодняшний день выпуском модификаций автокрана КС 3577 занимается завод «Угличмаш». 16-тонные модели КС 3577-3К сходят с конвейера на базе таких автомобилей как:
- КАМАЗ 43253,
- КАМАЗ 53605,
- МАЗ 5337А2.
Технические характеристики автокрана КС 3577 позволяют ему осуществлять работы по погрузке или разгрузке, монтажно-строительные работы на отдельных строительных объектах. Использование автокрана этой модели допустимо при довольно широком диапазоне температурных режимов – от -40С до +40С, а телескопическая двухсекционная стрела гарантирует маневренность при любых видах работ.
Последние выпускаемые модификации автокрана КС 3577 оснащены ограничителем грузоподъемности, работающего на основе микропроцессора. В микропроцессоре находится метрическая память по работе автокрана, которая фиксирует все рабочие данные и определяет степень загрузки на стрелу крана за весь период срока службы. Эта новация позволяет контролировать расстояние выноса стрелы и уровень нагрузки на нее, позволяет определять ограничения в повороте или подъеме выносного механизма и операторской кабины.
Автокраны в современном мире это неотъемлемая часть строительных работ любого вида, объема и сложности. Без их участия практически невозможно воплотить в жизнь желание человека строить высотные здания и сооружения. Несмотря на относительную простоту автокранов КС 3577, спрос на их услуги не снижается, а наоборот растет. Их универсальность и многофункциональность стали залогом безопасного, качественного и быстрого строительства как промышленных, так и жилых объектов.
Видео автокрана кс 3577 в действии:
https://youtube.com/watch?v=NCh5GFLN59s
Основные черты
Сейчас можно долго критиковать МАЗы пятисотого семейства за шумный двигатель, жесткую подвеску и кучу других конструктивных недостатков. Однако нужно учесть, что для своего времени это была перспективная машина с огромным ресурсом узлов до капитального ремонта. Она славилась неубиваемостью и ремонтопригодностью.
Грузовой автомобиль с серийным номером 5334 любили и шоферы, и механики. Он был широко распространен на территории всего СССР от Калининграда – до Камчатки, от Крайнего Севера – до Кавказа.
Кроме того, машина поставлялась на экспорт и была хорошо знакома во многих странах, таких как Венгрия, ГДР, Куба и другие. Выпуск данной модели уже давно прекращен. Однако до до сих пор еще нет-нет, да и промчится сине-желтый «Ивановец». В нем сразу чувствуется сочетание силы и мощи, которое направлено на мир, созидание и службу людям.

Автокран КС-3577 «Ивановец»
Прежде чем изучить автокран КС 3577 4, а также другие модификации транспортного средства, необходимо более подробно рассмотреть характерные особенности основной модели. Автомобиль представляет собой стандартный автокран, оборудованный удобной стрелой-манипулятором, установленной на грузовое шасси МАЗ.
Массовое производство рассматриваемой модификации «Ивановец» началось в 1984 году на специальном заводе в Иваново, специализирующемся на выпуске подобного рода продукции. Благодаря удачной конструкции и превосходным техническим характеристикам, транспортному средству удалось стать одной из самых выгодных и эффективных моделей в своем сегменте.
Среди ключевых особенностей рассматриваемой модели необходимо упомянуть следующие:
- универсальность. С помощью стрелы-манипулятора автокран может с легкостью перемещать различные изделия из бетона, железа и других материалов в пределах допустимой нагрузки;
- электросхема, предусматривающая наличие системы безопасности, которая предотвращает чрезмерное выдвижение стрелы либо перегруз агрегата;
- компактные размеры, позволяющие эффективно выполнять различные задачи в городских условиях.

 Автокран Ивановец Также необходимо упомянуть отличную проходимость, характерную для большинства автомобилей Минского Автомобильного Завода, что делает транспортное средство отличным решением для строительных и иных объектов.
Помимо многочисленных преимуществ, характерных для подобного рода модели, целесообразно отметить и ряд недостатков. Это течи, которые нередко возникают в стыках магистралей гидравлической системы, поскольку они могут привести к потере агрегатом работоспособности. Внимания заслуживает и плохое качество антикоррозийной обработки, которое приводит к быстрому появлению ржавчины, особенно на кабине оператора.
Устройство крана
Будучи установленном на грузовом шасси МАЗ 5337, КС 3577 был снабжен довольно мощным двигателем ЯМЗ-236. Он отличается длительным сроком службы, его мощностные показатели достигают 180-230 л.с (зависит от модификации). В качестве трансмиссии используется стандартная КПП механического типа, снабженная 5 ступенями.
Обязательно почитайте: Автокраны Галичанин: модельный ряд, технические характеристики
К числу других важных элементов следует отнести:
- кабина;
- гидравлическая схема, включая гидроцилиндр опор, а также центральный аналог;
- основная платформа, на которую установлен автокран;
- шасси.
Задний мост транспортного средства оснащен дополнительными редукторами, которые удачно смонтированы в колесные ступицы, что позволило существенно сократить размеры основного элемента и увеличить возможности автокрана. Платформа с манипулятором установлена на задней части шасси, а материалом для её изготовления выступают различные элементы из стального профиля.
Благодаря наличию двухходовой стрелы секционного типа, устройство без особых проблем может выполнять работы на внушительной высоте, а также в условиях дефицита свободного пространства. Простая и надежная конструкция позволяет значительно продлить срок службы данной модели автокрана, а запчасти на него стоят сравнительно мало, что дает возможность сократить издержки на ремонт и обслуживание.
Например, при необходимости заменить бак, масляный фильтр или другие комплектующие водитель может приобрести нужные элементы и выполнить работу самостоятельно, избежав дополнительных трат.

 Характеристики крана
Оборудование стрелы
Среди наиболее значимых элементов конструкции автокрана «Ивановец» модели КС 3577 3 целесообразно отметить удобную секционную стрелу, которая относится к телескопическому типу и способна существенно увеличиваться в длине при необходимости.
За подъем основной части манипулятора вверх отвечает центральный гидроцилиндр, а за последующее выдвижение — 2 парных аналога, а также гидрозамок стрелы.
Удлинитель стрелы, который также называют гусек, также заслуживает упоминания, поскольку он во многом определяет эксплуатационные характеристики модели. Он изготовлен из металлического угла и закреплен на конце выдвижной части манипулятора, что позволяет увеличить рабочее пространство под ним.
Основные узлы стрелового оборудования
Оборудование стрелы
Традиционно, как и большинство автомобильных кранов, модель КС-3577 снабжена телескопической конструкцией стрелы. Сам орган подъема состоит из двух частей: неподвижной, шарнирно закрепленной к опоре и подвижной секции, которая способна выдвигаться. Подъем вверх основной опорной части стрелы обеспечивает главный гидроцилиндр. За выдвижение второй секции отвечают два гидроцилиндра, соединенные между собой при помощи муфты.

Устройство и принцип работы гидроцилиндра выдвижения стрелы автокрана
Удлинитель стрелы
Гусек или удлинитель предусмотрен, чтобы увеличить пространство работы под стрелой, а также высоту последней. В автокране КС-3577 этот элемент выполнен из металлического проката (угла) и с помощью специальных кронштейнов крепится к оголовку выдвижной секции стрелы. Транспортировать гусек можно на самом КС-3577, крепя его рядом со стрелой к ее боковой плоскости.

Операторская, поворотный узел автокрана, грузоподъемный орган
КС-3577 является грузоподъемной системой, работающей за счет гидравлики. Рабочие органы приводит в действие гидронасос, который сам подключен через коробку на вал отбора мощности автомашины. Специальным рычагом в кабине крановщик может отключить насос от привода.
Механизм поворота платформы
Узел выполнен на основе гидромотора, который соединен с двухступенчатым редуктором. Также имеется тормоз колодочного типа и гидроразмыкатель. Выходная часть редуктора на валу имеет шестерню. Последняя зацепляется с поворотно-опорным кругом по средству зубчатого венца. Поворотная часть автокрана может быть вращаема вручную рукояткой. Для этого имеется промежуточный вал с шестерней с хвостовиком на конце.

Кабина крановщика
Машинист, управляющий автокраном КС-3577, во время выполнения грузоподъемных операций находится в специальной кабине. Все органы управления машиной выведены в это рабочее помещение. Кабина оснащена световым оборудованием, охлаждающим вентилятором, имеет просторные смотровые окна. Для работ в зимний период предусмотрено отопление рабочего места, сам кузов кабины теплоизолирован.

Грузоподъемный механизм
Лебедка грузовая приводится в движение гидромотором через редуктор двухступенчатого типа. Сама она имеет барабан со способом торможения через ленточный тормоз и гидроразмыкатель. Барабан сообщается с крюковой подвеской через специальный трос.

График грузоподъемности и высота
Электрическая начинка
Автомобильный кран КС-3577 – современная машина с базовым набором электрооборудования, куда входят системы безопасности, измерительные приборы, световое оборудование. Вся эта электроника питается от генератора напряжением на 24 вольта.

Прибор безопасности ОГМ-240
Безопасность
Приборы безопасности, призванные обеспечивать безопасность при выполнении автокраном грузоподъемных операций, в КС-3577 представлены ограничителями: превышения подъема предельной массы груза, выдвижения стрелы и ее вылета, высоты уровня подъема груза. Также имеются всевозможные датчики и сигнализаторы.

Примерное устройство работы системы безопасности автокрана
Применяемое шасси
Кран КС-3577 поставлен на шасси двухосного типа автомашины МАЗ при колесной формуле 4х2.

Кран КС-3577 МАЗ 4х2
Это интересно: Технические характеристики автомобильного крана кс-4561 и его модификаций: рассказываем обстоятельно
Стоимость модели

Сегодня автокран МАЗ-5337 снят с производства, а завод «Ивановская марка» выпускает более современные машины. Купить автокран можно на вторичном рынке.
Стоимость автокрана МАЗ-5337 определяется, исходя из:
- Технического состояния и процента износа автомашины, крана.
- Комплектации автокрана, количества дополнительных опций.
- Региона продажи.
Стоимость модели 1990-1994 годов выпуска колеблется от 300 000 до 700 000 рублей.
Цена модели 2004-2008 гг. выпуска начинается от 1 000 000 рублей. Возможна покупка в кредит или составление договора лизинга.
Кран, продающийся в Москве, но территориально находящийся, например, в Ижевске, стоит дешевле и продаваться будет дольше.
Стоимость аренды автокрана МАЗ-5337 800-1500руб/час.
Все краны МАЗ-5337 отличают хорошие грузовысотные характеристики и надежность основных узлов.
Като 25
КАТО — это японский производитель спецтехники, который организует поставки качественного оборудования на рынок. Все производимые устройства отличаются высокой проходимостью, маневренностью и мобильностью.
Основной показатель, на который обращают внимание покупатели автокрана КАТО 25 – грузоподъемность, соответственно, 25 тонн. Здесь установлен двигатель от Mitsubishi мощностью 270 лошадиных сил
При собственной массе в 27 тонн, характеристики автокрана позволяют ему развивать скорость до 49 км/час. Применяется следующая колесная формула – 4х4х4, которая обеспечивает дополнительную надежность и устойчивость конструкции.
Телескопическая стрела имеет максимальный вылет в 30,5 м, возможна комплектация с удлинителем до 13 м. Таким образом, максимальный вылет стрелы может составить более 43 метров.
Интересной особенностью автокрана 25 тонн является также то, что он имеет охват до 360 градусов рабочего пространства. Удобная кабина облегчает состояние водителя в условиях полной загруженности во время работы.




























 
    


